Espace propriétaire

Votre recherche

Vendu
Magnac-Bourg (87380)

5 pièces - 95,20 m²

Maison 4 chambres, 2 garages, un hangar

Ref : VMA1036
Découvrir le bien
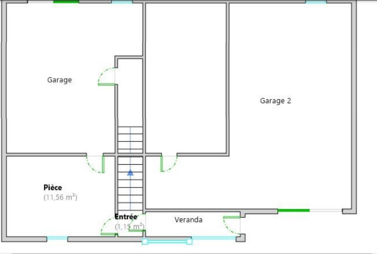
Maison très bien entretenue proposant 4 chambres, deux garages et un grand hangar, idéal pour les amateurs de bricolage, stockage..  La maison de 95 m² comprend au rez de chaussée, une entrée, un bureau de 11.5 qui vient en complément des 95 m² habitables. Deux garages de 55 m² et 26 m². Au 1er étage un grand salon lumineux vous est proposé, une cuisine séparée, 4 chambres de 11 m² à 13 m², une salle d'eau neuve, un wc. Une véranda et un grenier. Au fond de la parcelle vous apprécierez ce grand hangar présentant une grande hauteur. Toiture refaite il y a 10 ans, chauffae eau solaire. Electricité revue. Peintures neuves. Assainissement individuel à refaire. Un puits et une cave viennent compléter ce bien.  Commerces de Magnac Bourg à 2 minutes. Accès A20 à 3 min.
TRAD_ZEPHYR_Caracteristique TRAD_ZEPHYR_Valeurs
Code postal 87380
surface terrain 700 m²
Surface loi Carrez (m²) 95,20 m²
Nombre de chambre(s) 4
Nombre de pièces 5
TRAD_ZEPHYR_Caracteristique TRAD_ZEPHYR_Valeurs
Nb de salle d'eau 1
Cuisine Séparée
Mode de chauffage Fioul
Type de chauffage Radiateur
Format de chauffage Individuel
Nombre de garage 2
Nombre de parking 2
Année de construction 1960
TRAD_ZEPHYR_Caracteristique TRAD_ZEPHYR_Valeurs
Taxe foncière annuelle 570 €
DPE GES
  • Commerces et santé
  • Loisirs
  • Ecoles
  • Transports
  • Pratique
Contacter pour ce bien
L'agence
Téléphone 05 55 33 63 60
Adresse
36, rue Bernard Palissy 87000 Limoges

* Champ obligatoire

Les informations recueillies sur ce formulaire sont enregistrées dans un fichier informatisé par La Boite Immo agissant comme Sous-traitant du traitement pour la gestion de la clientèle/prospects de l'Agence / du Réseau qui reste Responsable du Traitement de vos Données personnelles. La base légale du traitement repose sur l'intérêt légitime de l'Agence / du Réseau. Elles sont conservées jusqu'à demande de suppression et sont destinées à l'Agence / au Réseau. Conformément à la loi « informatique et libertés », vous disposez des droits d’accès, de rectification, d’effacement, d’opposition, de limitation et de portabilité de vos données. Vous pouvez retirer votre consentement à tout moment en contactant directement l’Agence / Le Réseau. Consultez le site https://cnil.fr/fr pour plus d’informations sur vos droits. Si vous estimez, après avoir contacté l'Agence / le Réseau, que vos droits « Informatique et Libertés » ne sont pas respectés, vous pouvez adresser une réclamation à la CNIL. Nous vous informons de l’existence de la liste d'opposition au démarchage téléphonique « Bloctel », sur laquelle vous pouvez vous inscrire ici : https://www.bloctel.gouv.fr Dans le cadre de la protection des Données personnelles, nous vous invitons à ne pas inscrire de Données sensibles dans le champ de saisie libre.
Ce site est protégé par reCAPTCHA, les Politiques de Confidentialité et les Conditions d'Utilisation de Google s'appliquent.

Découvrir nos outils