Espace propriétaire

Votre recherche

Vendu
Laurière (87370)

4 315 m²

Terrain à vendre 4315 M² dans le centre de Laurière

Ref : VTE1390
Découvrir le bien

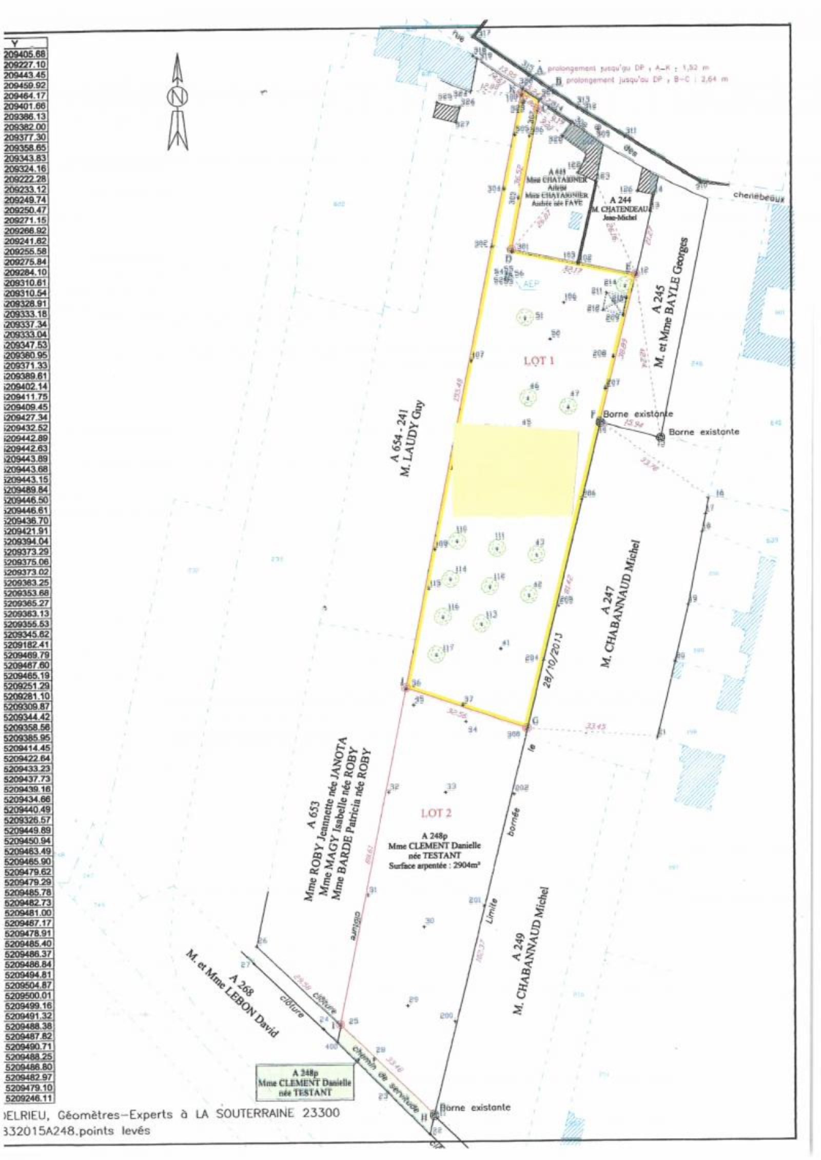
Pour les amoureux de la nature, vous rêvez d'une construction dans le centre de Laurière proche des commodités dans environnement calme et verdoyant ce terrain plat avec arbres fuitiers est fait pour vous. Cette parcelle toute clôturée est desservie par le tout à l'égout, électricité, eau. Libre de constructeur.


RSAC : 880606967

TRAD_ZEPHYR_Caracteristique TRAD_ZEPHYR_Valeurs
Code postal 87370
surface terrain 4 315 m²
Terrain constructible OUI
TRAD_ZEPHYR_Caracteristique TRAD_ZEPHYR_Valeurs
Exposition Est-Ouest
Terrain Viabilisé NON
Raccordement eau NON
Raccordement gaz NON
Raccordement électricité NON
Raccordement téléphone NON
TRAD_ZEPHYR_Caracteristique TRAD_ZEPHYR_Valeurs
Copropriété NON
  • Commerces et santé
  • Loisirs
  • Ecoles
  • Transports
  • Pratique
Contacter pour ce bien
L'agence
Téléphone 05 55 33 63 60
Adresse
36, rue Bernard Palissy 87000 Limoges

* Champ obligatoire

Les informations recueillies sur ce formulaire sont enregistrées dans un fichier informatisé par La Boite Immo agissant comme Sous-traitant du traitement pour la gestion de la clientèle/prospects de l'Agence / du Réseau qui reste Responsable du Traitement de vos Données personnelles. La base légale du traitement repose sur l'intérêt légitime de l'Agence / du Réseau. Elles sont conservées jusqu'à demande de suppression et sont destinées à l'Agence / au Réseau. Conformément à la loi « informatique et libertés », vous disposez des droits d’accès, de rectification, d’effacement, d’opposition, de limitation et de portabilité de vos données. Vous pouvez retirer votre consentement à tout moment en contactant directement l’Agence / Le Réseau. Consultez le site https://cnil.fr/fr pour plus d’informations sur vos droits. Si vous estimez, après avoir contacté l'Agence / le Réseau, que vos droits « Informatique et Libertés » ne sont pas respectés, vous pouvez adresser une réclamation à la CNIL. Nous vous informons de l’existence de la liste d'opposition au démarchage téléphonique « Bloctel », sur laquelle vous pouvez vous inscrire ici : https://www.bloctel.gouv.fr Dans le cadre de la protection des Données personnelles, nous vous invitons à ne pas inscrire de Données sensibles dans le champ de saisie libre.
Ce site est protégé par reCAPTCHA, les Politiques de Confidentialité et les Conditions d'Utilisation de Google s'appliquent.

Découvrir nos outils